Waterview House
Client: Steph and Josh HelmTypology: Residential
Status: Completed 2023
Location: Waterview, Tāmaki Makaurau
Builders: J.R. Hosking Co.
Photography: Sam Hartnett
Harry
Turbott was a highly regarded architect active from the 60s through to the turn
of the century. He was known for his human centric and site specific approach
to a wide range of architectural typologies and landscapes. He designed and
built this dwelling in Waterview in 1990 as an office for himself and a home
for his daughter. It served that purpose well but when Steph and Josh bought
the place in 2017 it proved a difficult layout for them to live in. In 2021
they approached llewellyn to help them turn it into a home that served their
family.
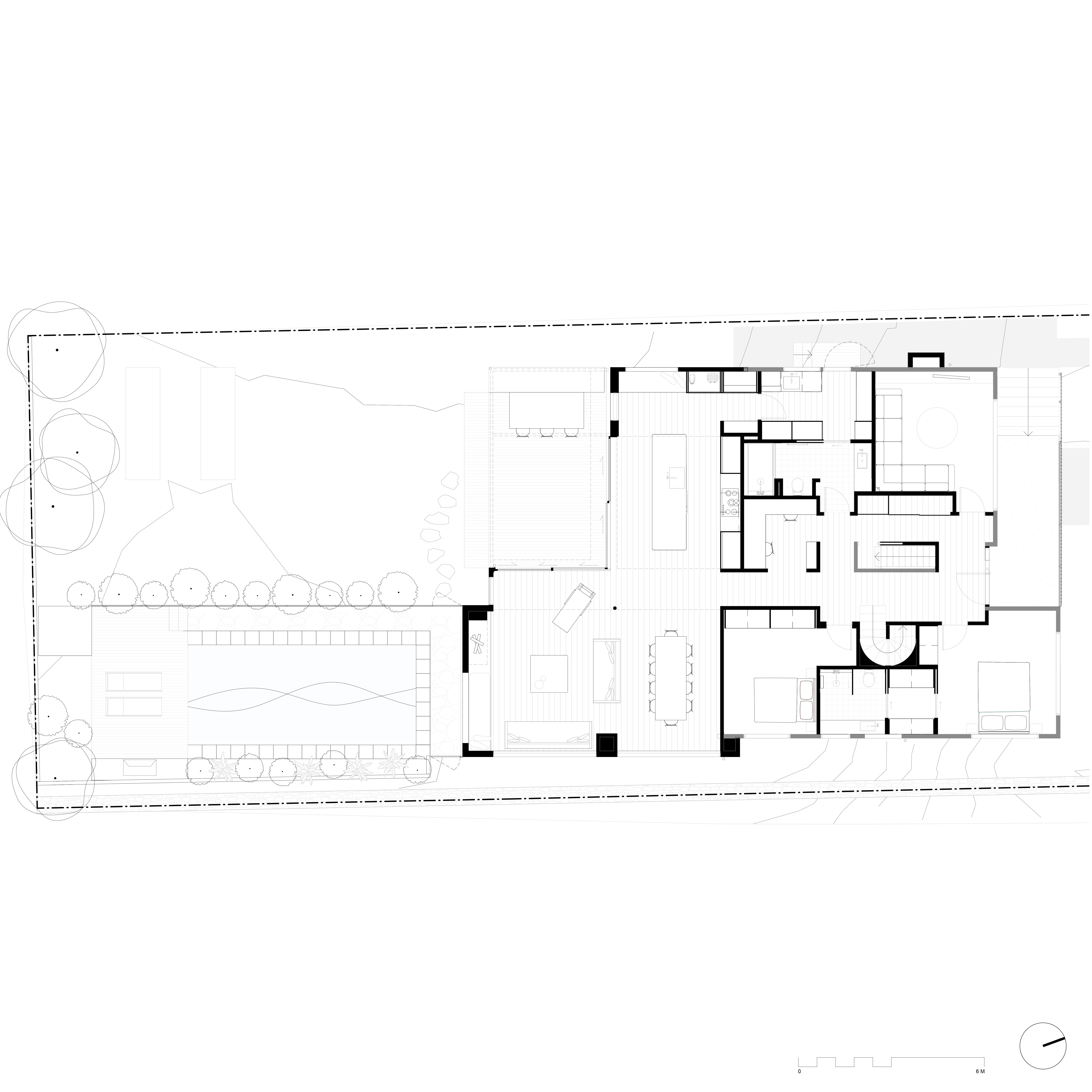
The bones of the house were already delightful so the process was more about reconfiguring the internal layout while responding to the rich material palette that Turbott had already set up. The first floor needed to be opened up and turned into a functional living space with a new kitchen, while the ground floor needed to accommodate two new bedrooms and a bathroom. We pushed the external walls out in some places to help with this, while staying under the existing roofline. We also added new external openings throughout the house to maximise the light and the view to the mangroves and the Whau River beyond.
The bones of the house were already delightful so the process was more about reconfiguring the internal layout while responding to the rich material palette that Turbott had already set up. The first floor needed to be opened up and turned into a functional living space with a new kitchen, while the ground floor needed to accommodate two new bedrooms and a bathroom. We pushed the external walls out in some places to help with this, while staying under the existing roofline. We also added new external openings throughout the house to maximise the light and the view to the mangroves and the Whau River beyond.
Oakley Avenue
Client:
Steph
and Josh Helm
Typology: Residential
Status: Completed 2023
Location: Waterview, Tāmaki Makaurau
Builders: J.R. Hosking Co.
Photography: Sam Hartnett
Harry Turbott was a highly regarded architect active from the 60s through to the turn of the century. He was known for his human centric and site specific approach to a wide range of architectural typologies and landscapes. He designed and built this dwelling in Waterview in 1990 as an office for himself and a home for his daughter. It served that purpose well but when Steph and Josh bought the place in 2017 it proved a difficult layout for them to live in. In 2021 they approached llewellyn to help them turn it into a home that served their family.
The bones of the house were already delightful so the process was more about reconfiguring the internal layout while responding to the rich material palette that Turbott had already set up. The first floor needed to be opened up and turned into a functional living space with a new kitchen, while the ground floor needed to accommodate two new bedrooms and a bathroom. We pushed the external walls out in some places to help with this, while staying under the existing roofline. We also added new external openings throughout the house to maximise the light and the view to the mangroves and the Whau River beyond.
Bob’s Cove Dwellings
Client: PrivateTypology: Residential
Status: Detailed Design
Location: Bob’s Cove, Lake Whakatipu
The clients currently live internationally, moving between countries following their work. We were engaged to design a forever home for them and their two small children at Bob’s Cove. The site overlooks Lake Whakatipu, with stunning views out to the Remarkables and down to the lake in front. The densely covered site will be a sanctuary for native trees within which three buildings will be delicately placed.
Bob’s Cove Dwellings
Client: PrivateTypology: Residential
Status: Detailed design
Location: Bob’s Cove, Whakatipu
The clients
currently live internationally, moving between countries following their work. We
were engaged to design a forever home for them and their two small children at
Bob’s Cove. The site overlooks Lake Whakatipu, with stunning views out to the
Remarkables and down to the lake in front. The densely covered site will be a
sanctuary for native trees within which three buildings will be delicately
placed.
Pete’s House
Client & Collaborator: Peter AshTypology: Residential
Status: Completed 2022
Location: Waitomo
Pete splits
his time between Aotearoa and New York. This dwelling was built on his family
land in Waitomo. It gives him a place he can call his own when he’s back while still
being among family and the community he likes to hold close.
The design was a collaborative effort. Being a designer himself, Pete had a strong vision for the house. We helped to facilitate this and deliver what was needed to see the project through to construction.
Careful consideration of the functionality and placement of openings allows each room a generous connection to the landscape, which is a large drawcard for Pete.
The design was a collaborative effort. Being a designer himself, Pete had a strong vision for the house. We helped to facilitate this and deliver what was needed to see the project through to construction.
Careful consideration of the functionality and placement of openings allows each room a generous connection to the landscape, which is a large drawcard for Pete.
Pete’s House
Client & Collaborator: Peter AshTypology: Residential
Status: Completed 2022
Location: Waitomo
Pete splits
his time between Aotearoa and New York. This dwelling was built on his family
land in Waitomo. It gives him a place he can call his own when he’s back while still
being among family and the community he likes to hold close.
The design was a collaborative effort. Being a designer himself, Pete had a strong vision for the house. We helped to facilitate this and deliver what was needed to see the project through to construction.
Careful consideration of the functionality and placement of openings allows each room a generous connection to the landscape, which is a large drawcard for Pete.
The design was a collaborative effort. Being a designer himself, Pete had a strong vision for the house. We helped to facilitate this and deliver what was needed to see the project through to construction.
Careful consideration of the functionality and placement of openings allows each room a generous connection to the landscape, which is a large drawcard for Pete.
Bellwood Ave
Client: PrivateTypology: Residential
Status: Detailed Design
Location: Mount Eden, Tāmaki Makaurau
This is a substantial renovation to a midcentury home in Mount Eden. The clients wanted plenty of room for their young family to grow into where verybody could find a quiet corner to work or play while also providing a large openmain living space.
We wanted to to provide a quality sheltered outdoor living space that felt like a seamless extension of the internal living area.
We wanted to to provide a quality sheltered outdoor living space that felt like a seamless extension of the internal living area.
Bellwood Ave
Client: PrivateTypology: Residential
Status: Detailed design
Location: MtEden,Tāmaki Makaurau
This is a substantial renovation to a midcentury home in Mount Eden. The clients wanted plenty of room for their young family to grow into where verybody could find a quiet corner to work or play while also providing a large openmain living space.
We wanted to to provide a quality sheltered outdoor living space that felt like a seamless extension of the internal living area.
We wanted to to provide a quality sheltered outdoor living space that felt like a seamless extension of the internal living area.
Dignan Ave
Client: PrivateTypology: Residential
Status: Preliminary Design
Location: Point Chevalier, Tāmaki Makaurau
Our clients are subdividing their large section in Point Chevalier with views to Meola reef to build their families dream home at the back. The site poses a few chalenges with North and the line of the views off in competing directions. The positioning and layout of the house came about through a lot of modeling and testing of site lines and sun paths.
Dignan
Client: PrivateTypology: Residential
Status: Preliminary design
Location: Point Chevalier, Tāmaki Makaurau
Our clients are subdividing their large section in Point Chevalier with views to Meola reef to build their families dream home at the back. The site poses a few chalenges with North and the line of the views off in competing directions. The positioning and layout of the house came about through a lot of modeling and testing of site lines and sun paths.